27 Maltese DriveMiddletown, NY 10940
Due to the health concerns created by Coronavirus we are offering personal 1-1 online video walkthough tours where possible.




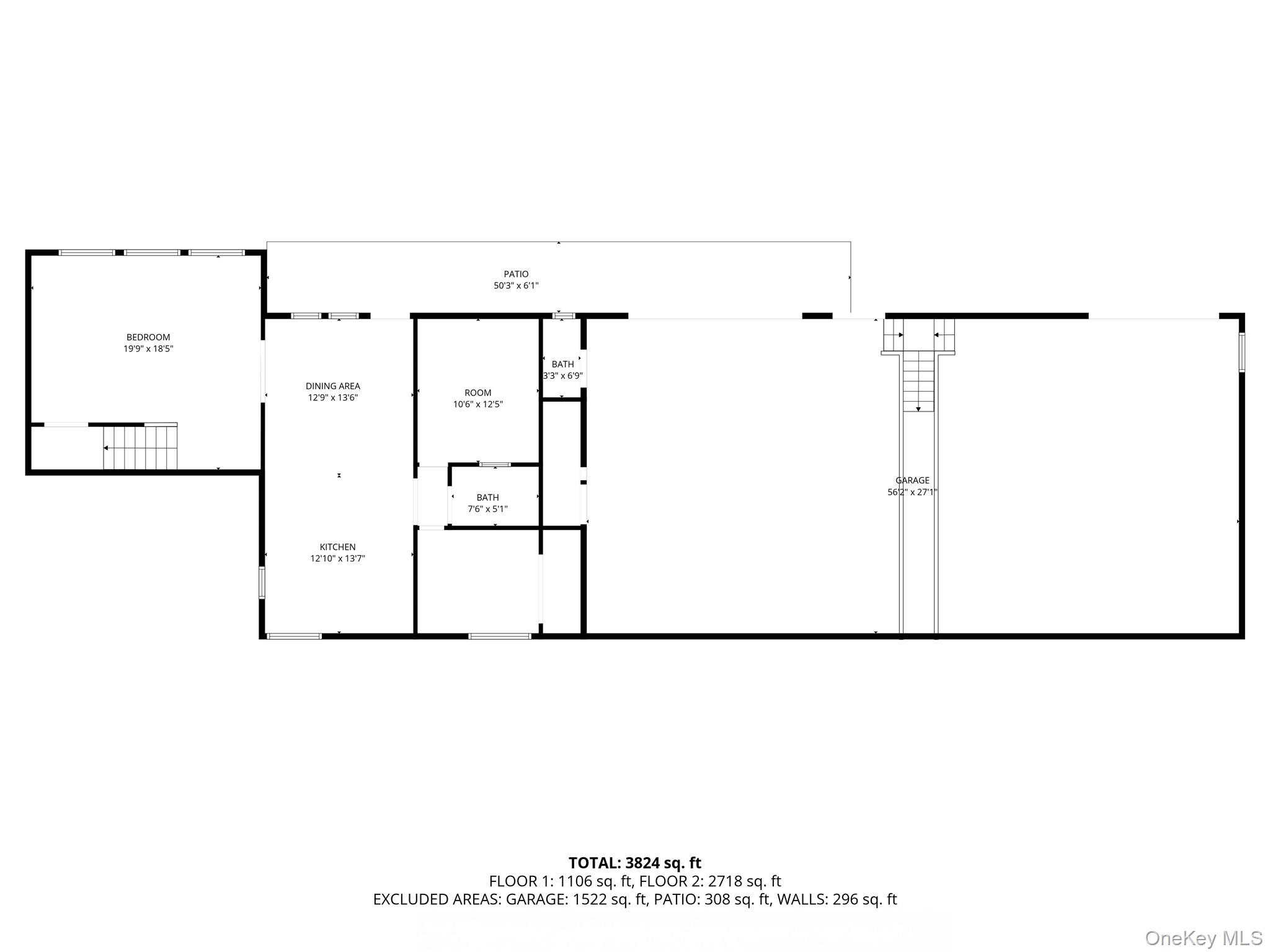
What an opportunity to OWN over 6,000± sqft of mix use space of retail, warehouse space and grandfathered in residential space right on the Miracle Mile of Route 211! Exceptional visibility, easy access, and incredible potential for an owner-user, investor, or redevelopment play. (Legal address: 27 Maltese Drive, the road behind the building.) This property includes a fully rented 3-bedroom apartment providing immediate income, plus a lower-level 2,000± SF warehouse ideal for storage, trades, or service operations. Town approvals are in, and renovations have already begun! The current owner is moving forward with the construction of three individual storefronts, each with its own private bathroom. The project will also deliver brand-new flooring and modernized glass display windows for all retail units—perfect for professional services, boutique retail, or showroom concepts. Bring your vision and work directly with the owner during construction to tailor the spaces to your business or investment goals. Keep a storefront for your own operation and lease the others, or fully lease all units for a strong cash-flow investment on one of the most recognized commercial corridors in Orange County.
| 3 weeks ago | Listing first seen on site | |
| 3 weeks ago | Listing updated with changes from the MLS® |
Based on information submitted to the MLS GRID as of 2025-11-03 02:24 PM EST. All data is obtained from various sources and may not have been verified by broker or MLS GRID. Supplied Open House Information is subject to change without notice. All information should be independently reviewed and verified for accuracy. Properties may or may not be listed by the office/agent presenting the information.

Did you know? You can invite friends and family to your search. They can join your search, rate and discuss listings with you.