70 Bethlehem RoadNew Windsor, NY 12553
Due to the health concerns created by Coronavirus we are offering personal 1-1 online video walkthough tours where possible.



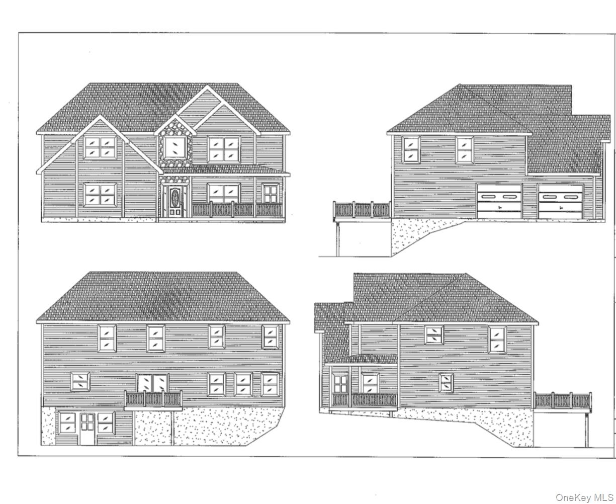
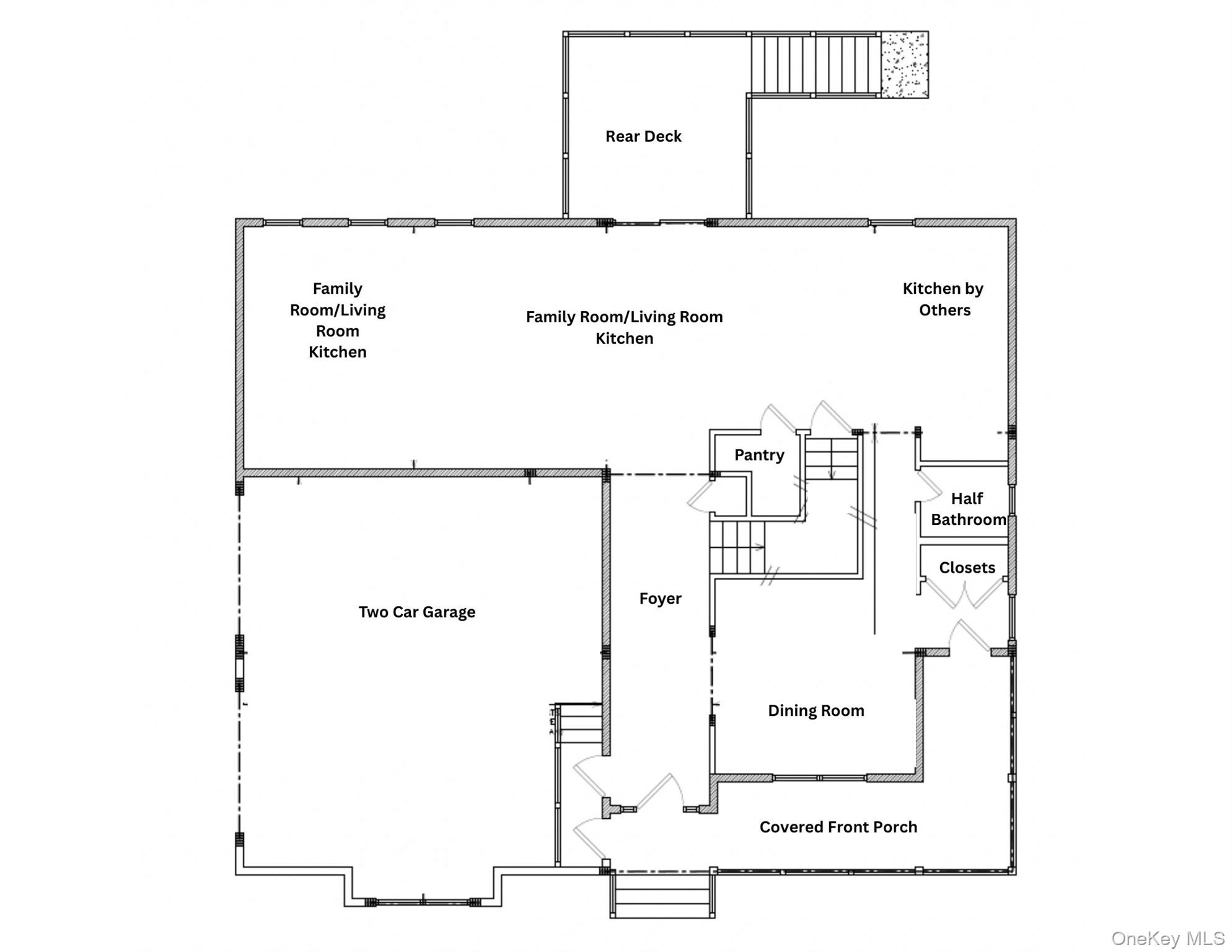
NEW CONSTRUCTION CORNWALL CENTRAL SCHOOL DISTRICT! Nestled on a private and expansive 1.47-acre lot, this 3,098 sq. ft. contemporary Colonial offers the perfect balance of modern luxury and high-efficiency living. The main level features a sprawling open-concept design where the massive living areas flow seamlessly into a gourmet kitchen with a dedicated pantry, perfect for everyday living and grand entertaining. Upstairs, you’ll find four spacious bedrooms, including a palatial Owners Suite complete with a private bath and an oversized closet. Built to the latest energy standards, this home is equipped with high-efficiency heating system and energy efficient mini-split systems. Enjoy the peace and quiet of your wooded surroundings from the 16’ rear deck or the charming covered front porch. Additional features include a 2-car attached garage and a full walkout basement providing excellent potential for future finished space. Located just minutes from major commuter routes and all the amenities of New Windsor and Cornwall. Your brand-new dream home is ready for you!
| 4 weeks ago | Listing first seen on site | |
| 4 weeks ago | Listing updated with changes from the MLS® |
Based on information submitted to the MLS GRID as of 2026-03-04 01:52 AM EST. All data is obtained from various sources and may not have been verified by broker or MLS GRID. Supplied Open House Information is subject to change without notice. All information should be independently reviewed and verified for accuracy. Properties may or may not be listed by the office/agent presenting the information.

Did you know? You can invite friends and family to your search. They can join your search, rate and discuss listings with you.