Osborne StreetMonticello, NY 12701
Due to the health concerns created by Coronavirus we are offering personal 1-1 online video walkthough tours where possible.




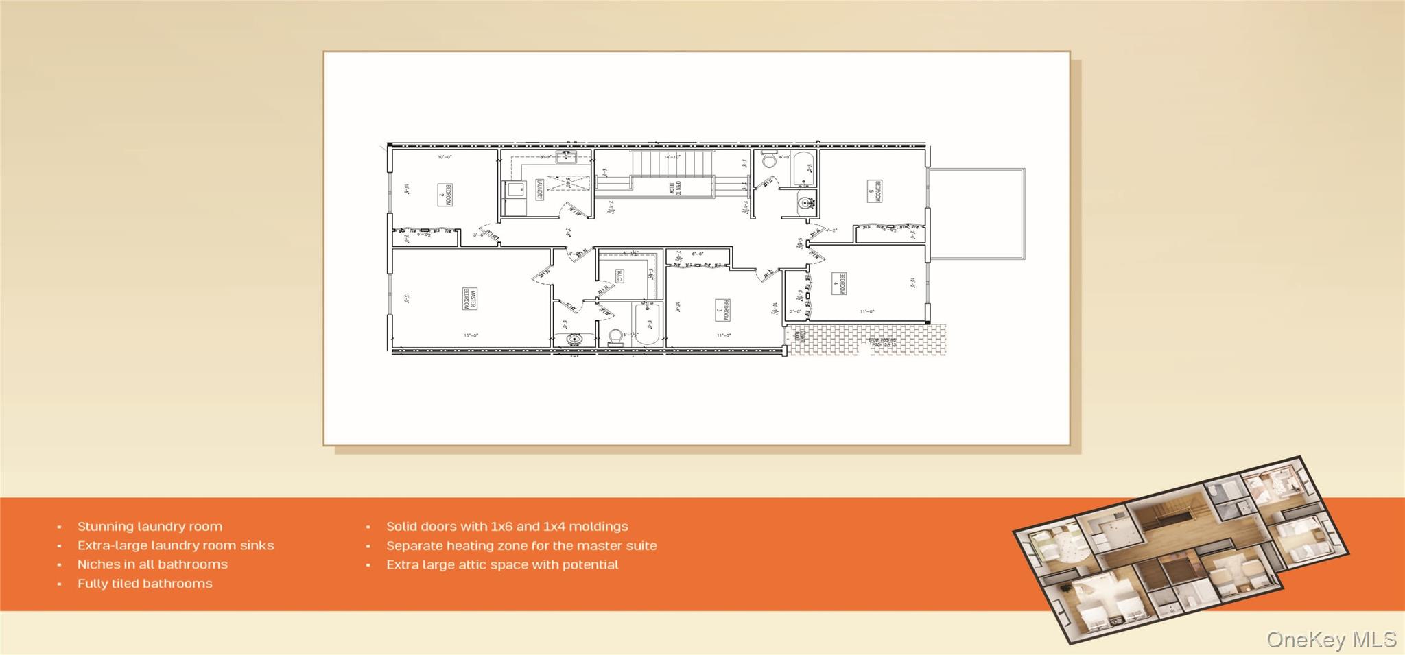
This exceptional property is being sold together with three neighboring parcels, creating a combined approved 10-unit residential development opportunity in Monticello, NY. Permits have been issued and construction may begin immediately. Approved plans are in place for spacious two-story residences, each offering approximately 2,776 square feet of finished living space plus a 1,388 square foot unfinished basement. The assembled site is predominantly flat, providing efficient building conditions and minimizing extensive grading or major site work. Utilities are available, reducing infrastructure complexity and allowing for a smooth transition from acquisition to construction. A rare opportunity to acquire multiple parcels with approvals secured and move directly into the building phase. Buyer to verify all approvals, parcel information, utilities, and development details.
| a week ago | Listing first seen on site | |
| a week ago | Listing updated with changes from the MLS® |
Based on information submitted to the MLS GRID as of 2026-03-03 06:45 PM EST. All data is obtained from various sources and may not have been verified by broker or MLS GRID. Supplied Open House Information is subject to change without notice. All information should be independently reviewed and verified for accuracy. Properties may or may not be listed by the office/agent presenting the information.

Did you know? You can invite friends and family to your search. They can join your search, rate and discuss listings with you.